Property Type
Apartment, Duplex
Parking
Garage: Yes, 2 parking
MLS #
SK020717
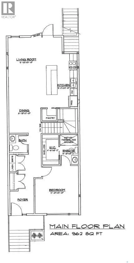
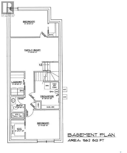
Size
1672 sqft
Basement
Finished, Full (Finished)
Listed on
-
Lot size
-
Tax
-
Days on Market
-
Year Built
2017
Maintenance Fee
-